This is a quick tutorial demonstrating how Storm Injector can be used to run a range of ensemble ARR 2016 design storm using WBNM for the 'Natural.wbn' sample file.
For this tutorial, you can use the WBNM ENG version of WBNM which can be downloaded from here. Download and then link the wbnm_eng.exe file in the WBNM Settings >> Engine field in the Settings tab.
1.Click
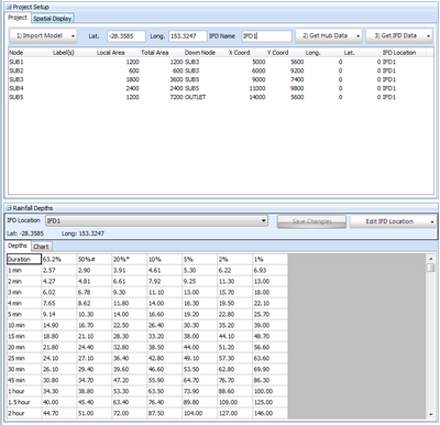
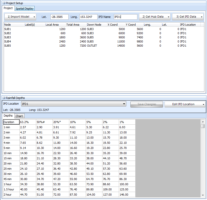
and select Import Model >> WBNM and select the 'Natural.wbn' file. This file does not have real world coordinates, so click No when asked about converting subcatchments to lat/long coordinates.
2.Use the default latitude and longitude and click
and then click Ingest Data on the Browser Form to download ARR Hub Data. You should notice that all panels on the left of the Storm Generator tab have now been populated except the Rainfall Depths table.
3.Click
. After loading, you should see the IFD data displayed. You should also notice a number of non-standard durations entered to match the temporal patterns. Click Ingest Data. You should now see that the Rainfall Depths table is populated. You should also note that the single IFD location has been assigned in the IFD location column for all subcatchments.

4.Select an event to model. For this example, click the checkbox in the '1% AEP' column and the 'rare' row of the Selected Events panel.

5.At this stage, you can click
. You should now see that ARFs, Burst Losses and suggested Routing Increments have been calculated. The Storms panel includes a row for every storm proposed to be run through the rainfall runoff model (WBNM in this case).

6.Click
and select the file 'natural.wbn' which is located in the WBNM folder relative to where you have unzipped the software on your PC.
7.Ensure the path to the WBNM engine file is correctly set in the settings.
8.Click
. You should see that all the models are run in sequence with up to 4 models running at once. You can switch to hidden window mode to remove the popup window effect.
9.Once the model running is complete (this should take less than one minute), click
to analyse the results. From this point you can refine your subcatchments of interest, chart box and whisker plots, chart hydrographs and analyse which temporal patterns are most often adopted.

10.
Please note that the WBNM file distributed with Storm Injector are offered for demonstration purposes only.